Santa Clara Ranch

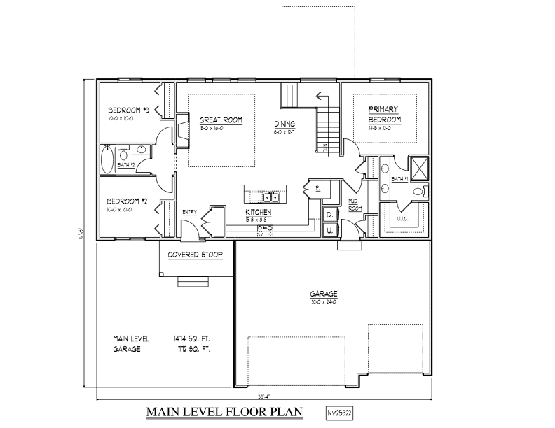
The open-concept floor plan in this home makes entertainment a breeze. The kitchen, dining, and living room are all one open space, providing a layout that is functional, light, and inviting.


There are three bedrooms and two bathrooms on the main floor, including a master suite with master bath and walk-in closet. This home also features a main-level laundry room.


The finished basement features a 4th bedroom and 3rd bathroom, as well as a large rec room.


Price from $280,000
Area 2400 ft²
Beds 4
Baths 3

Santa Clara Ranch

New walk-up floor plan by Wasser Builders: this sprawling, split bedroom ranch features an open concept living space with coffered ceilings in the living room, a beautiful fireplace & a large island to gather around in the kitchen. The kitchen will come complete w/all appliances & also has a surprise... a hidden pantry! The primary suite also features a coffered ceiling & comes with its own en-suite bath & walk in closet. The main level also features 2 more bedrooms, a 2nd bathroom, lots of closet space & a laundry/mud room right off of the 3 stall garage. In the finished basement you will find 2 more bedrooms, a large rec room & a 3rd bathroom.


Features of this home include 9'+ ceilings, LVP throughout the main living area, quartz countertops, double sink vanity & tile shower in the primary bath, built in bench & storage in the mud room & underground sprinklers & sod.

Design

Features

  • KITCHEN ISLAND

    Placed at the heart of your cooking space, the large kitchen island provides extra prep and serving room.

  • LUXURY VINYL PLANK FLOORING

    Luxury vinyl plank (LVP) is an affordable, waterproof wood- or stone-look flooring option that has great warmth and texture underfoot. Most brands provide a long-term warranty for durability—you won’t have to worry about everyday wear and tear affecting your floor.

  • STONE COUNTERTOPS

    Gorgeous granite, quartz, or onyx countertops can take your home to the next level of style and durability.

  • APPLIANCES

    All kitchen appliances are included in a Wasser Builders home.

Here at Wasser Builders, we pride ourselves in using only quality-grade building materials in every home we build.


All of our homes are built to meet or exceed the following criteria:


  • 2x6 wall construction
  • All insulation value of R-19 and attic insulation value of R-50
  • 85-gallon water heater
  • Energy-efficient HVAC system with electric heat pump and programmable thermostat
  • Sump pit with included pump
  • Passive radon mitigation system
  • Vapor barrier underneath the basement floor
  • Andersen windows
  • 30-50 year architectural shingle roof with ridge venting


All of our homes come with a 1-year builder warranty for your peace of mind, as well as our cell numbers for you to contact us if there is anything you should need.

Design

Features

  • KITCHEN ISLAND

    Placed at the heart of your cooking space, the large kitchen island provides extra prep and serving room.

  • LUXURY VINYL PLANK FLOORING

    Luxury vinyl plank (LVP) is an affordable, waterproof wood- or stone-look flooring option that has great warmth and texture underfoot. Most brands provide a long-term warranty for durability—you won’t have to worry about everyday wear and tear affecting your floor.

  • STONE COUNTERTOPS

    Gorgeous granite, quartz, or onyx countertops can take your home to the next level of style and durability.

  • APPLIANCES

    All kitchen appliances are included in a Wasser Builders home.

Here at Wasser Builders, we pride ourselves in using only quality-grade building materials in every home we build.


All of our homes are built to meet or exceed the following criteria:



  • 2x6 wall construction
  • All insulation value of R-19 and attic insulation value of R-50
  • 85-gallon water heater
  • Energy-efficient HVAC system with electric heat pump and programmable thermostat
  • Sump pit with included pump
  • Passive radon mitigation system
  • Vapor barrier underneath the basement floor
  • Andersen windows
  • 30-50 year architectural shingle roof with ridge venting


All of our homes come with a 1-year builder warranty for your peace of mind, as well as our cell numbers for you to contact us if there is anything you should need.